Technical design for fabrication utilizing CNC


Abby Aldrich Rockefeller Garden - Moongate Replica

New York Botanical Gardens - Technical Design & Fabrication by Daedalus Design & Production

The Acting Company - Hamlet / Rosencrantz & Guildenstern are Dead - Tour

Design by Neil Patel - Technical Design & Fabrication by Daedalus Design & Production

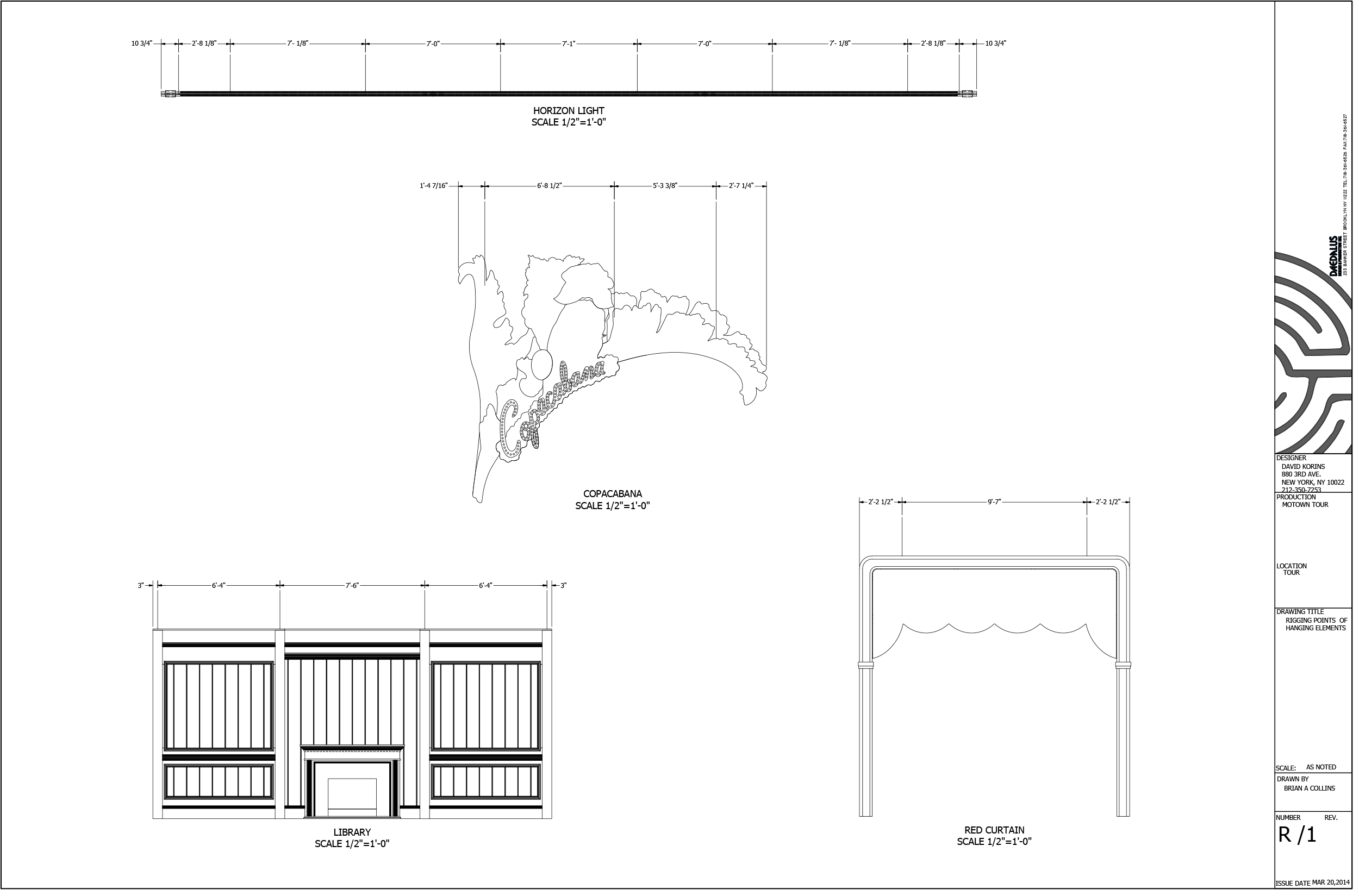
Motown - Tour

design by David Kornes - Technical Design & Fabrication by Daedalus Design & Production

Moon Man Table

David Gallo Design - Technical Design & Fabrication by Showman Fabricators

Marriott Shadow Ridge, CA

Design by Jellio - Technical Design & Fabrication by Showman Fabricators

Avengers 4D

Madame Tussauds New York - Technical Design & Fabrication by Showman Fabricators

BeeDatum.png